Nhà bán hẻm xe hơi 284/ Lý Thường Kiệt P14, Q10 .
/5
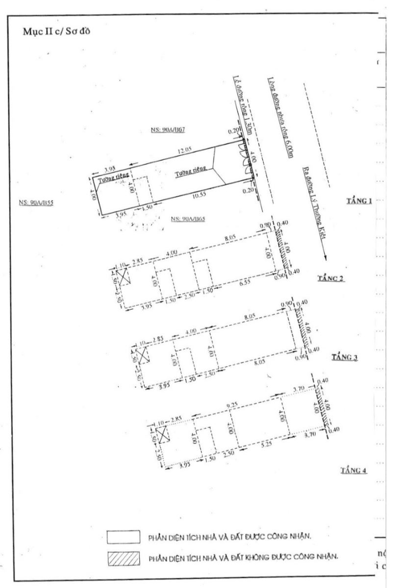
Nhà bán hẻm xe hơi 284/ Lý Thường Kiệt P14, Q10 .
- Nhà vị trí đẹp đối diện căn hộ cao cấp Xi Grand Court , gần nhà thi đấu Phú Thọ, bệnh viện, trường đại học Bách Khoa .
-DT: 4x16=64m2 , diện tích sàn 340m2 , Kết cấu 1 trệt 4 lầu .
-Nhà hướng Đông , khu dân cư cao cấp, an ninh .
-Hẻm xe hơi, giao thông thuận tiện đi các quận lân cận .
-Thích hợp kinh doanh, mua bán, mở văn phòng hoặc cho thuê .
-Giá bán : 23tỷ .
-Sổ hồng chính chủ .
-Liên hệ: 0906470481 .

.jpg)

.jpg)
